產品簡介
產品概述
JYWQ、JPWQ系列自動攪勻排污泵是在普通型排污泵的基礎上采用自動攪拌裝置,該裝置隨電機軸旋轉,產生極強的攪拌力,將污水池內的沉積物攪拌成懸浮物,吸入泵內排出,提高了泵的防堵、排污能力,一次性完成了排水、清污、除淤,節約了運行成本,是具有明顯的先進性和實用性的環保產品。
產品用途
1、工廠、商業嚴重污染廢水的排放。
2、城市污水處理、醫院、賓館的排水系統。
3、住宅區的污水排水站。
4、人防系統排水站、自來水廠的給水裝置。
5、市政工程、建筑工地。
6、勘探、礦山、發電廠配套附機。
7、農村沼氣池、農田灌溉、河塘清淤。
結構特點
1、采用獨特的雙流道無堵塞葉輪結構,提高污水污物的過流能力和排污能力
2、自動攪拌裝置,產生極強的攪拌力,將池內的沉淀物攪拌成懸浮物后吸入葉輪排出,達到清淤的作用。
3、隔板將底座一分為二,攪拌與進水互不影響。
4、機械密封為雙端面機械密封,長期處于油室中,保證水泵安全可靠地運行。
5、副葉輪結構的流體動力密封、既有輔助密封作用,從而保護機械密封,又平衡軸向力,延長軸承的使用壽命。
6、泵接線腔內設有漏水檢測探頭,出現漏水時,探頭發出信號,控制系統對泵實施保護。本公司可配全自動安全保護控制柜。
7、電機定子采用B級和F級絕緣,內設熱保護器,當電機過載發熱,保護器及時作出動作,對泵和電機實施絕對的保護。
8、油室內裝有油水探頭,當機械密封損壞后,水進入油室,探頭發出信號,由控制系統對水泵實施保護。
9、JPW帶內循環冷卻系統,能保證水泵在水池最低水位正常工作。
型號意義

產品優勢
- 利用泵自身出水壓力,攪勻污水池內沉淀污泥,真正達到徹底排出污水池沉淀物的目的。
- 大流道抗堵塞水力部件設計,大大提高污物通過能力,能有效通過泵口徑的5倍纖維物質和直徑為泵口徑約50%的固體顆粒。
- 設計合理,配套電機合理,效率高,節能效果顯著。
- 機械密封采用雙道串聯密封,材質為硬質耐腐碳化鎢,耐用,耐磨,可使泵安全連續運行8000小時以上。
- JYWQ型自動攪勻潛水排污泵結構緊湊,體積小、移動方便,安裝簡便,無需建泵房,潛入水中即可工作,減少工程造價。
- 油室內設有油水探頭,對泵實施絕對保護。
- 可配備全自動安全保護控制柜,對泵的漏水、漏電、過載及超溫等進行絕對保護,提高產品的安全可靠性。
- 浮球開關可根據所需的水位變化,自動控制泵的停啟,無需專人看管。
- 電機可采用水套式外循環冷卻系統,保證電泵在無水(干式)狀態下安全運行。
- 雙導軌自動耦合安裝系統,給泵的安裝、維修帶來極大的方便,人可不必為此進入污水坑。
- 安裝方式有固定式自動耦合安裝和移動式自由安裝二種,可滿足不同的使用場合。
性能參數
序號 | 型 號 |
排出口徑 (mm) |
流 量 (m3/h) |
揚 程 (m) |
攪拌直徑 (mm) |
轉 速 (r/min) |
功率 (KW) |
效率 (%) |
自動耦合器 |
1 | 50-12-15-1500-1.5 | 50 | 12 | 15 | 1200 | 2900 | 1.5 | 48 | GAK-50 |
2 | 50-20-7-1200-1.1 | 50 | 20 | 7 | 1200 | 2900 | 1.1 | 62 | GAK-50 |
3 | 50-10-10-1200-1.1 | 50 | 10 | 10 | 1200 | 2900 | 1.1 | 56 | GAK-50 |
4 | 50-15-15-1200-2.2 | 50 | 15 | 15 | 1200 | 2900 | 2.2 | 51 | GAK-50 |
5 | 50-25-10-1200-2.2 | 50 | 25 | 10 | 1200 | 2900 | 2.2 | 65 | GAK-50 |
6 | 50-15-20-1200-2.2 | 50 | 15 | 20 | 1200 | 2900 | 2.2 | 56 | GAK-50 |
7 | 50-20-15-1500-2.2 | 50 | 20 | 15 | 1200 | 2900 | 2.2 | 56 | GAK-50 |
8 | 50-42-9-1200-3 | 50 | 42 | 9 | 1200 | 2900 | 3 | 56 | GAK-50 |
9 | 50-17-25-1200-3 | 50 | 17 | 25 | 1200 | 2900 | 3 | 56 | GAK-50 |
10 | 50-25-22-1200-4 | 50 | 25 | 22 | 1200 | 2900 | 4 | 62 | GAK-50 |
11 | 50-40-15-1400-4 | 50 | 40 | 15 | 1400 | 2900 | 4 | 70 | GAK-50 |
12 | 50-25-32-1600-5.5 | 50 | 25 | 32 | 1600 | 2900 | 5.5 | 52 | GAK-50 |
13 | 50-40-30-1600-7.5 | 50 | 40 | 30 | 1600 | 2900 | 7.5 | 68 | GAK-50 |
14 | 65-25-28-1400-4 | 65 | 25 | 15 | 1400 | 2900 | 3 | 65 | GAK-65 |
15 | 65-37-13-1400-3 | 65 | 37 | 13 | 1400 | 2900 | 3 | 62 | GAK-65 |
16 | 65-25-28-1400-4 | 65 | 25 | 28 | 1400 | 2900 | 4 | 60 | GAK-65 |
17 | 80-40-7-1600-2.2 | 80 | 10 | 7 | 1600 | 2900 | 2.2 | 54 | GAK-80 |
18 | 80-29-8-1600-2.2 | 80 | 29 | 8 | 1600 | 2900 | 2.2 | 54 | GAK-80 |
19 | 80-43-13-1600-4 | 80 | 43 | 13 | 1600 | 2900 | 4 | 63 | GAK-80 |
20 | 80-50-10-1600-3 | 80 | 50 | 10 | 1600 | 1450 | 3 | 76 | GAK-80 |
21 | 80-40-15-1600-4 | 80 | 40 | 15 | 1600 | 2900 | 4 | 70 | GAK-80 |
22 | 80-60-13-1600-4 | 80 | 60 | 13 | 1600 | 2900 | 4 | 70 | GAK-80 |
23 | 80-35-25-1600-5.5 | 80 | 35 | 25 | 1600 | 2900 | 5.5 | 64 | GAK-80 |
24 | 80-50-25-1600-7.5 | 80 | 50 | 25 | 1600 | 2900 | 7.5 | 70 | GAK-80 |
25 | 80-50-30-1600-7.5 | 80 | 50 | 30 | 1600 | 2900 | 7.5 | 70 | GAK-80 |
26 | 100-80-9-2000-4 | 100 | 80 | 9 | 2000 | 1450 | 4 | 62 | GAK-100 |
27 | 100-110-10-2000-5.5 | 100 | 110 | 10 | 2000 | 1450 | 5.5 | 71 | GAK-100 |
28 | 100-70-15-2000-5.5 | 100 | 70 | 15 | 2000 | 1450 | 5.5 | 71 | GAK-100 |
29 | 100-100-15-2000-7.5 | 100 | 100 | 15 | 2000 | 1450 | 7.5 | 73 | GAK-100 |
30 | 100-80-20-2000-7.5 | 100 | 80 | 20 | 2000 | 2900 | 7.5 | 71 | GAK-100 |
31 | 100-50-35-2000-11 | 100 | 20 | 35 | 2000 | 2900 | 11 | 68 | GAK-100 |
32 | 100-70-22-2000-7.5 | 100 | 70 | 22 | 2000 | 2900 | 7.5 | 70 | GAK-100 |
33 | 100-100-22-2000-15 | 100 | 100 | 22 | 2000 | 1450 | 15 | 61 | GAK-100 |
34 | 100-80-30-2000-15 | 100 | 80 | 30 | 2000 | 1450 | 15 | 67 | GAK-100 |
35 | 150-150-10-2000-7.5 | 150 | 150 | 10 | 2000 | 1450 | 7.5 | 75 | GAK-150 |
36 | 150-210-7-2500-7.5 | 150 | 210 | 7 | 2500 | 1450 | 7.5 | 78 | GAK-150 |
37 | 150-250-6-2500-7.5 | 150 | 250 | 6 | 2500 | 1450 | 7.5 | 79 | GAK-150 |
38 | 150-150-15-2500-11 | 150 | 150 | 15 | 2500 | 1450 | 11 | 79 | GAK-150 |
39 | 150-200-10-2500-15 | 150 | 200 | 10 | 2500 | 1450 | 15 | 73 | GAK-150 |
40 | 150-65-40-3200-18.5 | 150 | 65 | 40 | 3200 | 1450 | 18.5 | 58 | GAK-150 |
41 | 150-180-22-2600-18.5 | 150 | 180 | 22 | 2600 | 1450 | 18.5 | 75 | GAK-150 |
42 | 150-150-26-2600-18.5 | 150 | 150 | 26 | 2600 | 1450 | 18.5 | 72 | GAK-150 |
43 | 150-110-30-2600-18.5 | 150 | 110 | 30 | 2600 | 1450 | 18.5 | 72 | GAK-150 |
44 | 150-300-15-2600-22 | 150 | 300 | 15 | 2600 | 1450 | 22 | 76 | GAK-150 |
45 | 150-130-30-2600-22 | 150 | 130 | 30 | 2600 | 1450 | 22 | 70 | GAK-150 |
46 | 150-100-40-3000-30 | 150 | 100 | 40 | 3000 | 1450 | 30 | 64 | GAK-150 |
47 | 200-300-7-3000-11 | 200 | 300 | 7 | 3000 | 1450 | 11 | 75 | GAK-200 |
48 | 200-250-11-3000-15 | 200 | 250 | 11 | 3000 | 1450 | 15 | 72 | GAK-200 |
49 | 200-300-10-3000-15 | 200 | 300 | 10 | 3000 | 1450 | 15 | 75 | GAK-200 |
50 | 200-250-15-3000-18.5 | 200 | 250 | 15 | 3000 | 1450 | 18.5 | 72 | GAK-200 |
51 | 200-400-10-3000-22 | 200 | 400 | 10 | 3000 | 1450 | 22 | 75 | GAK-200 |
52 | 200-200-20-3000-22 | 200 | 200 | 20 | 3000 | 1450 | 22 | 73 | GAK-200 |
53 | 200-250-22-3000-30 | 200 | 250 | 22 | 3000 | 1450 | 30 | 73 | GAK-200 |
54 | 250-600-7-3000-22 | 250 | 600 | 7 | 3000 | 1450 | 22 | 78 | GAK-250 |
55 | 250-600-9-3000-30 | 250 | 600 | 9 | 3000 | 1450 | 30 | 78 | GAK-250 |
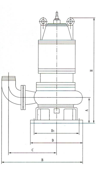
結構圖紙

安裝尺寸
序號 | 型 號 | A | B | C | D1 | D | H |
1 | 50-12-15-1200-1.5 | 135 | 400 | 245 | 225 | 255 | 670 |
2 | 50-20-7-1200-1.1 | 132 | 343 | 225 | 150 | 180 | 610 |
3 | 50-10-10-1200-1.1 | 132 | 343 | 225 | 150 | 180 | 610 |
4 | 50-15-15-1200-2.2 | 135 | 400 | 245 | 225 | 255 | 670 |
5 | 50-25-10-1200-2.2 | 135 | 400 | 245 | 225 | 255 | 670 |
6 | 50-15-20-1200-2.2 | 135 | 400 | 245 | 225 | 255 | 670 |
7 | 50-20-15-1200-2.2 | 135 | 400 | 245 | 225 | 255 | 670 |
8 | 50-42-9-1200-3 | 143 | 420 | 265 | 225 | 255 | 750 |
9 | 50-17-25-1200-3 | 130 | 433 | 265 | 240 | 285 | 750 |
10 | 50-25-22-1200-4 | 135 | 400 | 245 | 225 | 255 | 735 |
11 | 50-40-15-1400-4 | 143 | 420 | 265 | 225 | 255 | 750 |
12 | 50-25-32-1600-5.5 | 180 | 480 | 295 | 270 | 320 | 820 |
13 | 50-40-30-1600-7.5 | 180 | 480 | 295 | 270 | 320 | 820 |
14 | 65-25-15-1400-3 | 143 | 435 | 270 | 225 | 255 | 750 |
15 | 65-37-13-1400-3 | 143 | 435 | 270 | 225 | 255 | 750 |
16 | 65-25-28-1400-4 | 180 | 515 | 317 | 270 | 320 | 800 |
17 | 80-40-7-1600-2.2 | 143 | 465 | 295 | 225 | 255 | 685 |
18 | 80-29-8-1600-2.2 | 143 | 465 | 295 | 225 | 255 | 685 |
19 | 80-43-13-1600-4 | 143 | 465 | 295 | 225 | 255 | 750 |
20 | 80-50-10-1600-3 | 180 | 570 | 325 | 280 | 320 | 790 |
21 | 80-40-15-1600-4 | 143 | 465 | 295 | 225 | 255 | 750 |
22 | 80-60-13-1600-4 | 143 | 465 | 295 | 225 | 255 | 750 |
23 | 80-35-25-1600-5.5 | 180 | 550 | 305 | 270 | 320 | 820 |
24 | 80-50-25-1600-7.5 | 180 | 550 | 305 | 270 | 320 | 820 |
25 | 80-50-30-1600-7.5 | 180 | 550 | 305 | 270 | 320 | 820 |
26 | 100-80-9-2000-4 | 180 | 600 | 386 | 280 | 320 | 790 |
27 | 100-110-10-2000-5.5 | 200 | 700 | 440 | 370 | 410 | 900 |
28 | 100-70-15-2000-5.5 | 200 | 690 | 430 | 370 | 410 | 900 |
29 | 100-100-15-2000-7.5 | 200 | 700 | 440 | 370 | 410 | 900 |
30 | 100-80-20-2000-7.5 | 180 | 585 | 370 | 270 | 320 | 900 |
31 | 100-50-35-2000-11 | 180 | 585 | 370 | 270 | 320 | 940 |
32 | 100-70-22-2000-7.5 | 180 | 585 | 370 | 270 | 320 | 900 |
33 | 100-100-22-2000-15 | 230 | 815 | 515 | 455 | 495 | 970 |
34 | 100-80-30-2000-15 | 230 | 815 | 515 | 455 | 495 | 970 |
35 | 150-150-10-2000-7.5 | 213 | 775 | 495 | 360 | 405 | 920 |
36 | 150-210-7-2500-7.5 | 242 | 830 | 540 | 365 | 410 | 950 |
37 | 150-250-6-2500-7.5 | 242 | 830 | 540 | 365 | 410 | 950 |
38 | 150-150-15-2500-11 | 220 | 770 | 495 | 345 | 395 | 990 |
自動耦合式安裝示意圖
1.通風節 2.預埋管 3.膨脹節 4.逆止閥 5.閘閥 6.彎管 7.導軌 8.出水管 9.支架 10.耦合底座 11.自動攪勻排污泵 12.浮球開關(水位開關)13.隔板 14.浮球固定架 15.小鏈 16.掛鉤 17.人梯 18.支撐架 19.電纜出線管 20.電機保護器
自動耦合式安裝示意圖
注意事項
- 運轉前應用兆歐表檢查電機定子繞組對地的絕緣電阻.最低不得少于50兆歐。
- 檢查電纜有無破損、折斷等現象。如有損傷須及時更換,以免漏電;電纜截面應與電流相匹配。
- 屯壓超過額定電壓的±10%時,不得啟動電泵。
- 為保證使用安全,必須將四芯電纜中的接地線可靠接地,以防發生觸電事故。
- 電泵潛入水中時,應垂直起吊,不允許橫放著地,更不能陷入污泥中。停止使用時應將電泵吊起清洗干凈,置于干燥處,并注意防凍。
- 禁止:將電纜作為安裝起吊繩使用。
- 檢査轉子運轉方向,從上向下看應為順時針方向旋轉。
- 室外的開關或接線端應有防雨、防潮措施,濕手或赤足時禁止觸及幵關,防止觸電。
- 移動電泵時,必須切斷電源,電泵在運行時人不得接觸水源,以防漏電發生人身事故。
- 嚴禁電機缺相運轉,如發現保險絲熔斷,應檢査原因后方可繼續使用,不得任意加粗保險絲。
- 泵運轉時,應有專人管理,如發現有不正常現象應立即停機檢査,排除故障。(指未配全自動保護柜的情況〉。
- 電泵在規定的工作介質條件下正常運行半年后,應檢査油室密封狀況,如油室中的油呈乳狀或有水沉淀,應及時更換10?20號機械油和機械密封。對于在惡劣工作條件下使用的電泵,更應經常檢修。
- 用戶應根據實際使用的工況選擇合適的流量揚程,以達到最佳使用效果,泵銘牌或說明書上所示參數為該泵最佳使用工況點,用戶可選在(0.7?1.2)倍最佳流量內使用,禁止超流量使用,否則流量過大, 揚程太低容易使電機過載。